Vente de 11 Appartements à Monthey
11 Appartements distribués comme suit :
Lot 1 : 4,5 pièces rez-de-jardin de 112,5 m2 + jardin : CHF 694'400.-
Lot 2 : 3,5 pièces rez-de-jardin de 77 m2 + jardin : CHF 502'740.- Vendu
Lot 3 : 4,5 pièces rez-de-jardin de 112,5 m2 + jardin : CHF 690'480.-
Lot 4 : 4,5 pièces 1er étage de 112,5 m2 + balcon : CHF 678'720.-
Lot 5 : 3,5 pièces 1er étage de 77 m2 + balcon : CHF 485'640.- Vendu
Lot 6 : 4,5 pièces 1er étage de 112,5 m2 + balcon : CHF 678'720.-
Lot 7 : 4,5 pièces 2ème étage de 112,5 m2 + balcon : CHF 678'720.-
Lot 8 : 3,5 pièces 2ème étage de 77 m2 + balcon : CHF 485'640.- Vendu
Lot 9: 4,5 pièces 2ème étage de 112,5 m2 + balcon : CHF 678'720.-
Lot 10 : Attique de 95,9 m2 + terrasse de 75 m2 : CHF 712'130.- Vendu
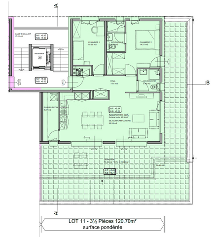
Lot 11 : Attique de 95,9 m2 + terrasse de 75 m2 : CHF 712'130.- Vendu
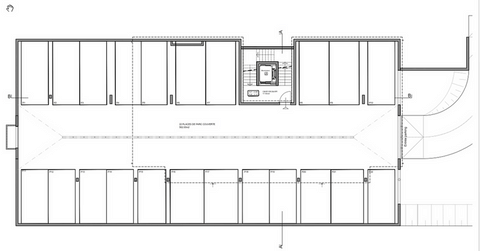
Places de parc dans parking souterrain en sus. : CHF 30'000.-
Livraison dès l'automne 2023


















