Villa Jumelle A1 de 5.5 pièces à St-Légier Vue Lac et Alpes
Changer d'horizon en 2021 en profitant d'une vue imprenable sur les Alpes et le bleu Léman. Un havre de paix pour la construction de cette villa jumelle "A1" comprenant un accès souterrain et des places de parc extérieures sur une parcelle de 1366 m2 comprenant également la villa jumelle "A2".
Judicieusement agencée sur 2 niveaux + sous-sol, elle se compose au rez d’une entrée avec armoire murale, une salle de douche/WC, un bureau ou chambre ainsi que d’une superbe cuisine ouverte sur le séjour qui donne accès à la magnifique terrasse.
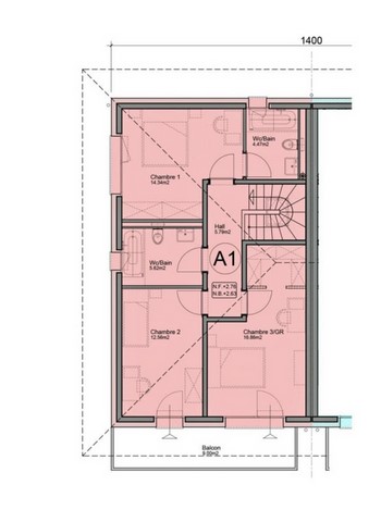
A l’étage : une suite parentale avec salle de bain/WC privative, 2 chambres et une salle de bain/WC.
Le sous-sol bénéficie d’une cave, un local technique, une buanderie et une pièce disponible.
Installation de panneaux solaires photovoltaïques. Chauffage à gaz basse température par les chapes et pose de panneaux solaires pour la production d'eau chaude.
2 places de parc intérieures et 2 places de parc extérieures complètent ce magnifique projet que je vous invite à découvrir.
Construction 2020-2021 pour une livraison dès l'automne 2021.
Surface habitable : 157 m2
Sous-Sol : 77 m2 comprenant une grande pièce disponible.
Surface utilisable : 234 m2
Volume : 1'030,77 m3
Un coup de coeur pour ce lieu d'exception que je vous invite à découvrir en vous présentant ce magnifique projet.
Judicieusement agencée sur 2 niveaux + sous-sol, elle se compose au rez d’une entrée avec armoire murale, une salle de douche/WC, un bureau ou chambre ainsi que d’une superbe cuisine ouverte sur le séjour qui donne accès à la magnifique terrasse.
A l’étage : une suite parentale avec salle de bain/WC privative, 2 chambres et une salle de bain/WC.
Le sous-sol bénéficie d’une cave, un local technique, une buanderie et une pièce disponible.
Installation de panneaux solaires photovoltaïques. Chauffage à gaz basse température par les chapes et pose de panneaux solaires pour la production d'eau chaude.
2 places de parc intérieures et 2 places de parc extérieures complètent ce magnifique projet que je vous invite à découvrir.
Construction 2020-2021 pour une livraison dès l'automne 2021.
Surface habitable : 157 m2
Sous-Sol : 77 m2 comprenant une grande pièce disponible.
Surface utilisable : 234 m2
Volume : 1'030,77 m3
Un coup de coeur pour ce lieu d'exception que je vous invite à découvrir en vous présentant ce magnifique projet.













